Projeto Clínica Urufisiu’s | Reforma 💙✨
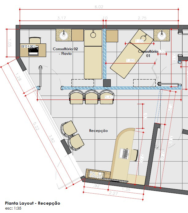
Uma transformação pensada na funcionalidade do dia a dia. A clínica tinha uma recepção grande, porém superdimensionada para a real necessidade. A solução foi redistribuir melhor os espaços: dividimos a antiga recepção em duas novas salas de atendimento e criamos uma recepção menor, prática e acolhedora. O mobiliário da recepcionista foi redesenhado para algo mais compacto e eficiente, com espaço para café, TV e um painel valorizando a logo da clínica. O destaque fica para os arcos iluminados embutidos no gesso, trazendo a cor da marca e personalidade ao ambiente. A paleta combina branco e azul como base, com toques de madeira e cinza para equilibrar e aquecer o espaço.
Uma transformação pensada na funcionalidade do dia a dia. A clínica tinha uma recepção grande, porém superdimensionada para a real necessidade. A solução foi redistribuir melhor os espaços: dividimos a antiga recepção em duas novas salas de atendimento e criamos uma recepção menor, prática e acolhedora. O mobiliário da recepcionista foi redesenhado para algo mais compacto e eficiente, com espaço para café, TV e um painel valorizando a logo da clínica. O destaque fica para os arcos iluminados embutidos no gesso, trazendo a cor da marca e personalidade ao ambiente. A paleta combina branco e azul como base, com toques de madeira e cinza para equilibrar e aquecer o espaço.
ANTES
PROJETO